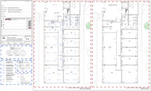
Progettazione ufficio Date: 22 aprile 2014Author: Arch. Bruno Miletta Categoria: Progettazione d'interni, Works Navigazione articolo ← Riqualificazione Lungotevere Papareschi Studio per casa a patio → In collaborazione con lo Studio Forniti Presentazione Progetto esecutivo Leyout cantiere Condividi: Condividi su X (Si apre in una nuova finestra) X Condividi su Facebook (Si apre in una nuova finestra) Facebook Mi piace Caricamento... Correlati