
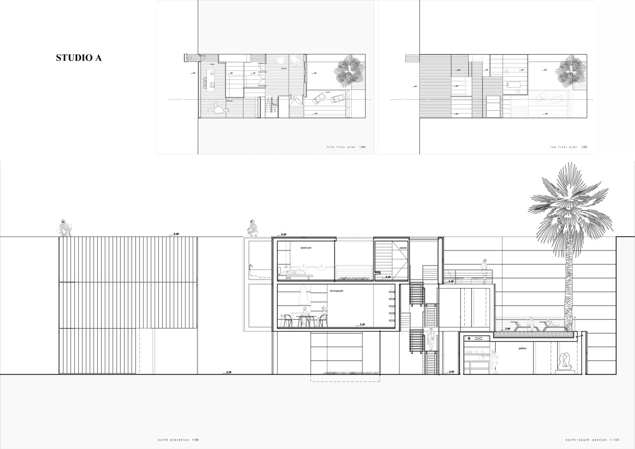
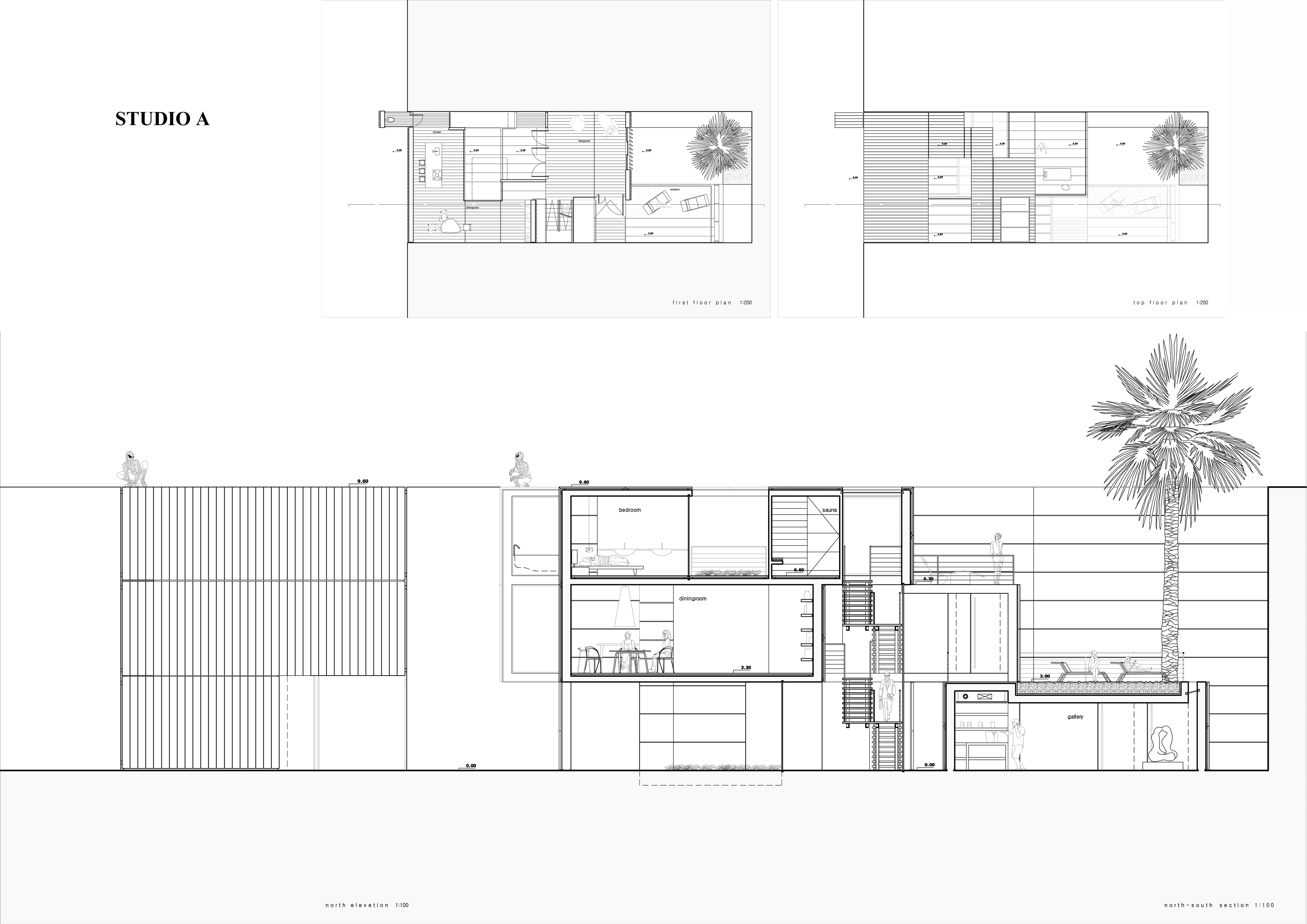
Il tema dello studio è stato la progettazione di una casa studi a patio in un lotto di dimensioni 9mx27m per un altezza massima di 9m.
Lo studio è stato eseguito in collaborazione con l’Arch. Danilo Lazzari e lo studio VisionLab di Monaco di Baviera

Il tema dello studio è stato la progettazione di una casa studi a patio in un lotto di dimensioni 9mx27m per un altezza massima di 9m.
Lo studio è stato eseguito in collaborazione con l’Arch. Danilo Lazzari e lo studio VisionLab di Monaco di Baviera