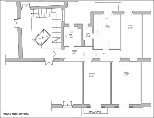
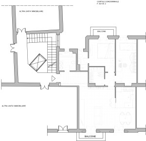
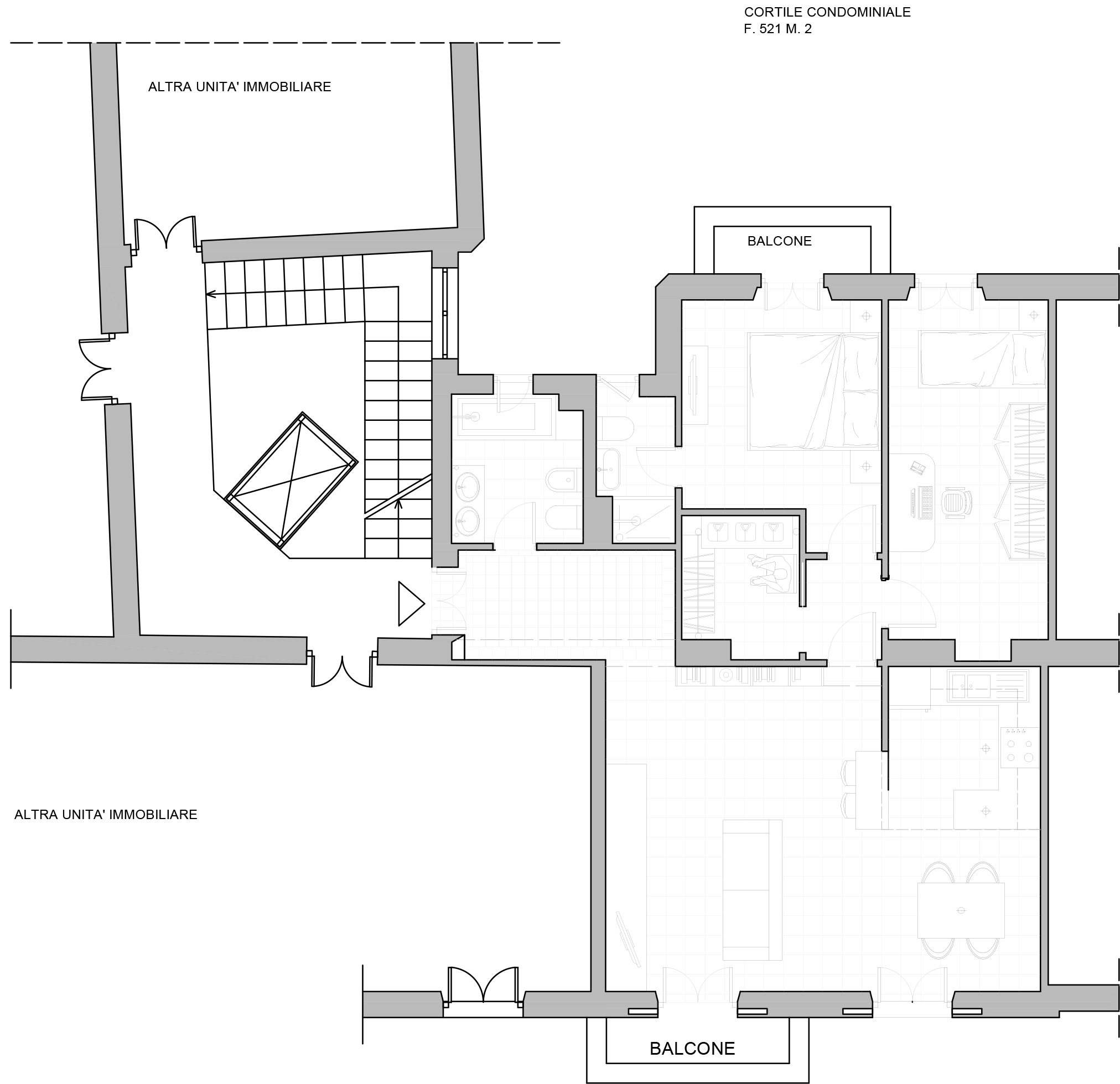
Il progetto nasce dall’esigenza dei committenti di trasformare e modernizzare gli spazi di un appartamento con una disposizione interna in stile vecchia Milano. L’immobile era composto da un corridoio centrale da cui si accedeva a tutte le stanze e da una cucina delle dimensioni di circa 3 mq. L’obbiettivo dell’intervento è stato quello di creare una zone notte, composta da due camere da letto di cui la principale con bagno privato, ed una zona giorno, composta da un bagno di servizio e da un ambiente unico ad uso cucina, sala da pranzo e soggiorno.
STATO INIZIALE

PROGETTO
PROGETTI CUCINA
STATO ATTUALE
Bagno
Camera da letto con bagno privato
Cucina























