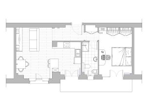
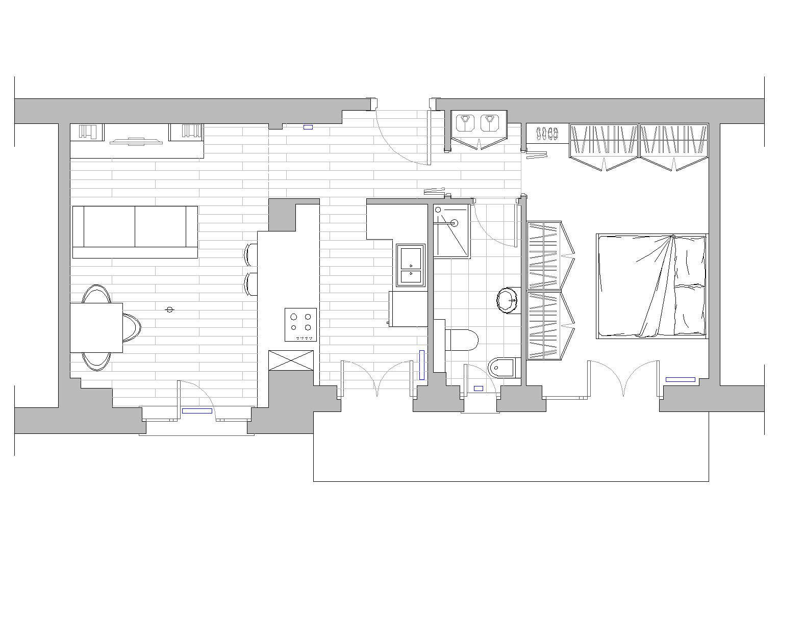
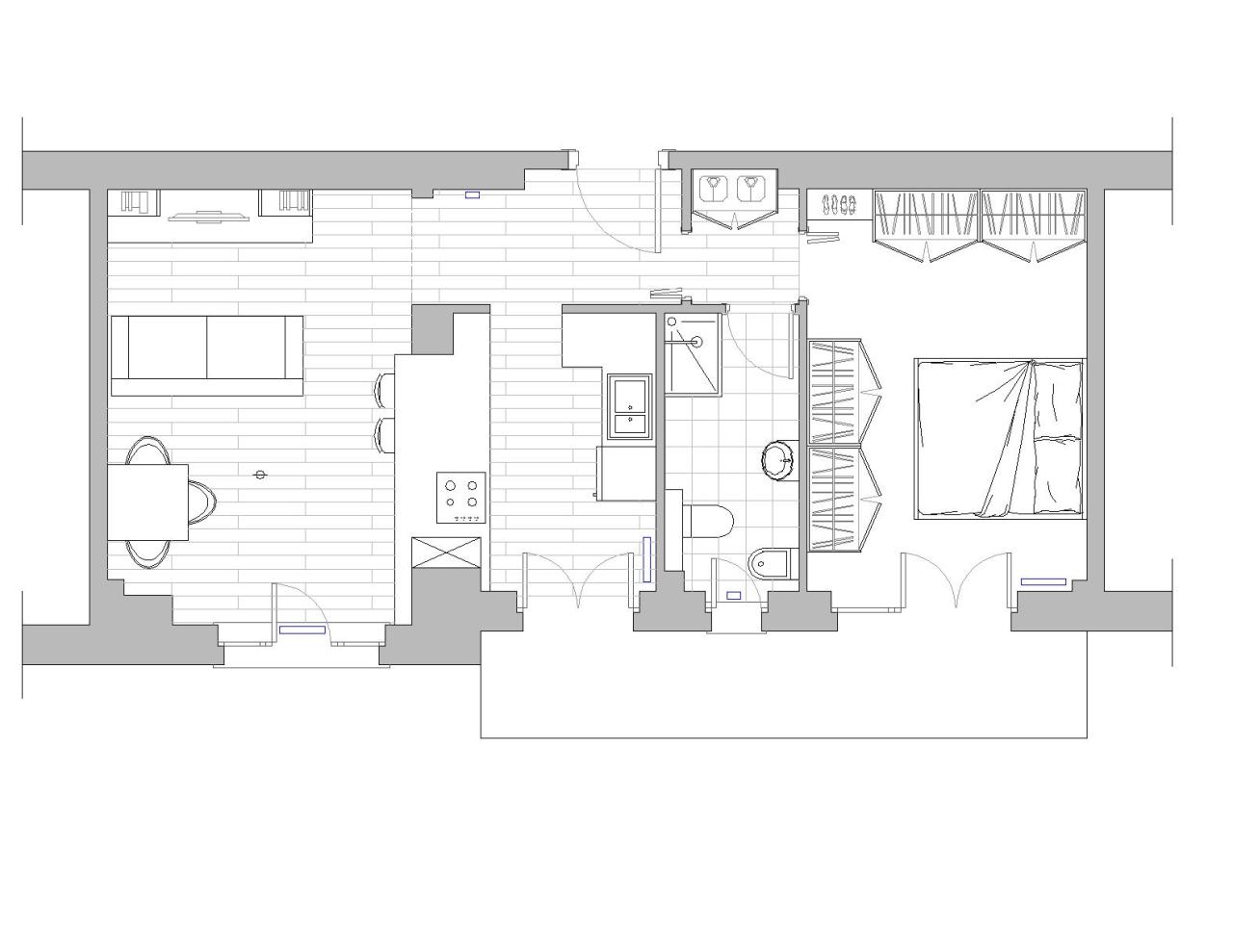
Restyling appartamento Date: 12 Maggio 2013Author: Arch. Bruno Miletta Categoria: Progettazione d'interni Navigazione articolo ← Pubblicazioni Skills → Rilievo e progetto di massima per il restyling di un appartamento Presentazione di massima Opzione A Opzione B Opzione C Condividi: Condividi su X (Si apre in una nuova finestra) X Condividi su Facebook (Si apre in una nuova finestra) Facebook Mi piace Caricamento... Correlati